Casa en una planta en privada Santa Fe, Villas de Irapuato
Villas de Irapuato, Irapuato, GuanajuatoDescription
-
Description:
Ubicada en la exclusiva privada Santa Fe en Villas de Irapuato, esta propiedad cuenta con beneficios de una ubicación privilegiada.
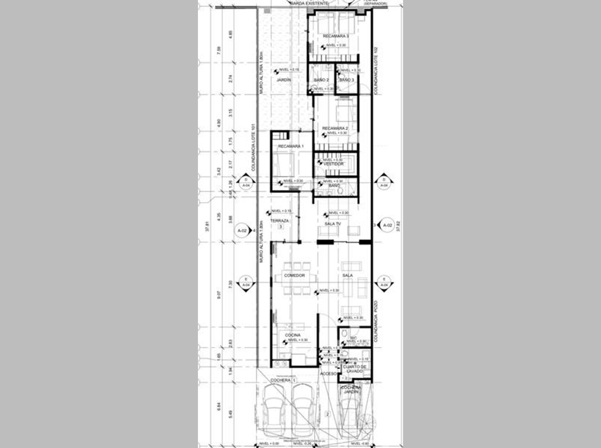
Por $6,970,000, esta casa de un solo nivel ofrece un amplio terreno de 378.13 m² y una construcción de 269 m²,
3 Recámaras
3 baños completos
1 Medio baño
3 Estacionamientos
1 Nivel.
La distribución incluye tres recámaras, cada una con baño completo, más un baño de visitas. La residencia está diseñada para maximizar el espacio y la funcionalidad, proporcionando comodidad en cada rincón.
La vivienda está situada dentro de una comunidad cerrada, lo cual garantiza un ambiente seguro con vigilancia permanente. El conjunto residencial incluye una casa club, perfecta para reuniones y eventos sociales, y permite la presencia de mascotas, haciendo de este inmueble una oferta muy atractiva para familias.
Construida en 2026, la casa es nueva y está libre de cualquier hipoteca. Además, se acepta credito hipotecario. Esta es una oportunidad única para invertir en una propiedad en Irapuato, donde el diseño moderno y la ubicación estratégica se combinan armoniosamente.
Show all description

